12 visitas
Entregas a: Antonio Bellet 193, 7500000 Providencia, Región Metropolitana, Chile
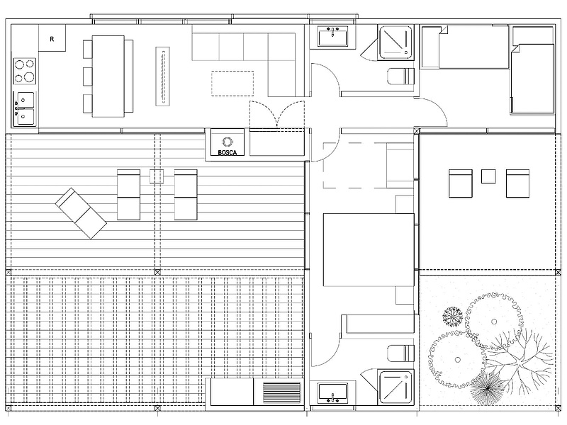
En VIIA Arquitectos, ofrecemos un servicio completo de diseño de planos de vivienda, adaptado a las necesidades y preferencias de nuestros clientes. Nuestro equipo de arquitectos altamente capacitados se dedica a crear soluciones innovadoras y funcionales, asegurando que cada plano maximice el uso del espacio y refleje el estilo de vida de sus habitantes. Utilizamos software de diseño de última generación para presentar visualizaciones detalladas, permitiendo a nuestros clientes visualizar su futuro hogar antes de que comience la construcción. Con un enfoque en la eficiencia energética y la sostenibilidad, diseñamos viviendas que no solo son estéticamente agradables, sino también respetuosas con el medio ambiente. Nuestro compromiso es transformar tus ideas en planos concretos, proporcionando un paso sólido hacia la realización de tu proyecto.