17 visitas
Entregas a: Santiago de Chile, Región Metropolitana, Chile
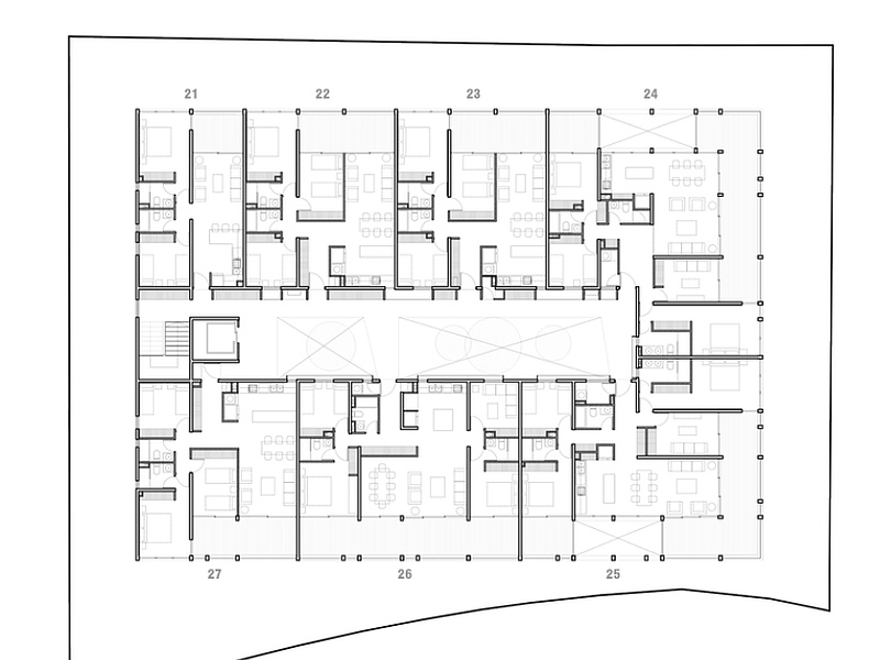
En NCRT Arquitectos, ofrecemos un servicio integral de diseño de planos arquitectónicos, creando representaciones precisas y detalladas que guían cada fase del proyecto. Nuestros arquitectos utilizan software avanzado para desarrollar planos que optimizan la funcionalidad y estética del espacio, garantizando la viabilidad técnica y constructiva. Trabajamos en estrecha colaboración con nuestros clientes para entender sus necesidades y visionar sus ideas, transformándolas en planos que reflejan su estilo y requerimientos. Cada proyecto se aborda con un enfoque personalizado, asegurando que los planos no solo sean visualmente atractivos, sino también prácticos y eficientes. Con NCRT Arquitectos, tus ideas se convierten en una base sólida para la construcción de tus sueños.