5 visitas
Entregas a: Puente Alto, Región Metropolitana, Chile
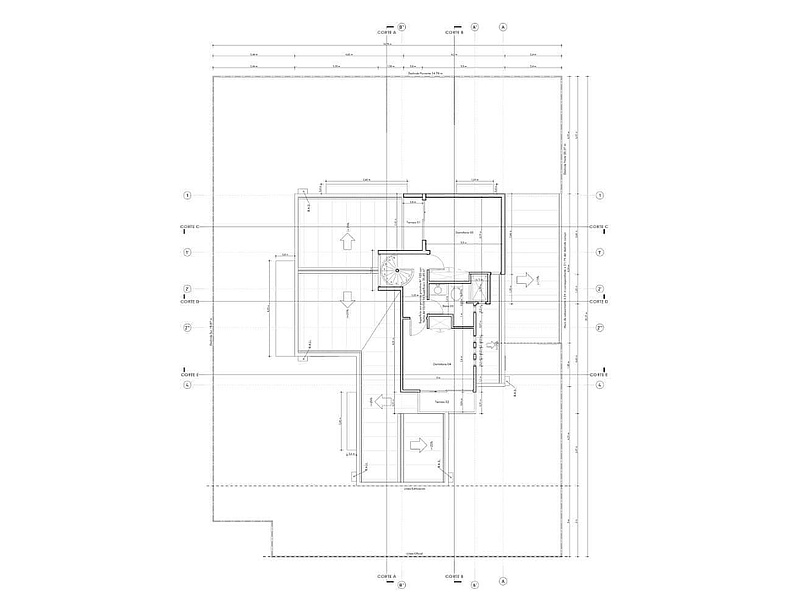
En GEM Arquitectos, desarrollamos planos arquitectónicos detallados que son el fundamento de cualquier proyecto exitoso. Nuestro equipo de arquitectos altamente calificados diseña planos que capturan la visión del cliente, integrando funcionalidad, estética y cumplimiento de normativas. Cada plano es meticulosamente elaborado para asegurar una construcción fluida y sin contratiempos, considerando factores como la distribución de espacios, la iluminación natural y la eficiencia energética. Con nuestros planos arquitectónicos, garantizamos una base sólida y bien pensada para la construcción de espacios que perduren en el tiempo.