14 visitas
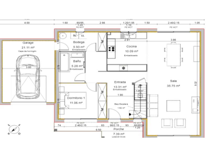
El diseño de una casa abarca la planificación y creación de un espacio funcional y estéticamente atractivo que se adapte a las necesidades y preferencias del propietario. Incluye la elaboración de planos arquitectónicos detallados que definen la distribución de habitaciones, áreas comunes y espacios exteriores. Se seleccionan materiales, colores y acabados que complementen el estilo deseado, ya sea moderno, clásico o contemporáneo. El diseño también considera la eficiencia energética, la iluminación y la ventilación, asegurando un hogar cómodo y eficiente. El objetivo es crear un ambiente armonioso que refleje la identidad del propietario y mejore la calidad de vida.